ザ・パークハウス広尾羽澤
お問合せ物件番号:TJ00014683
HP上に公開している物件は一部です
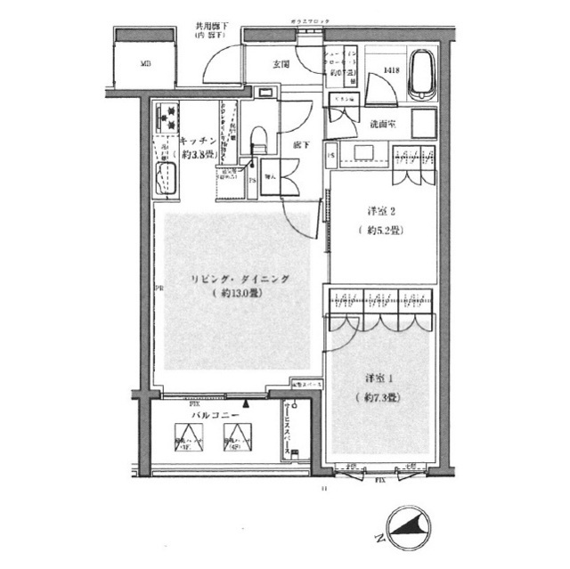
物件概要・設備
| 住所 | 東京都渋谷区広尾3丁目12-17 | ||
|---|---|---|---|
| 構造 | RC | ||
| 竣工時期 | 2014年05月 | 総戸数 | - |
| 駐車場 | |||
| 取引形態 | 媒介 | ||
外観が表示されていない場合は、
の位置を手動で調整してください
の位置を手動で調整してください
ザ・パークハウス広尾羽澤の
条件に似た賃貸マンション
条件に似た賃貸マンション
-
ブランズ渋谷常盤松
表参道駅
3LDK
45.4万円
-
ブランズ渋谷常盤松
表参道駅
3LDK
44.4万円
-
渋谷CAST APARTMENT
渋谷駅
2LDK
46万円
-
ヒルクレスト上原
代々木上原駅
3LDK
46万円
-
ザ・神宮前レジデンス
外苑前駅
2SLDK
44.5万円




