ラフィール自由が丘
お問合せ物件番号:CR00009567
HP上に公開している物件は一部です
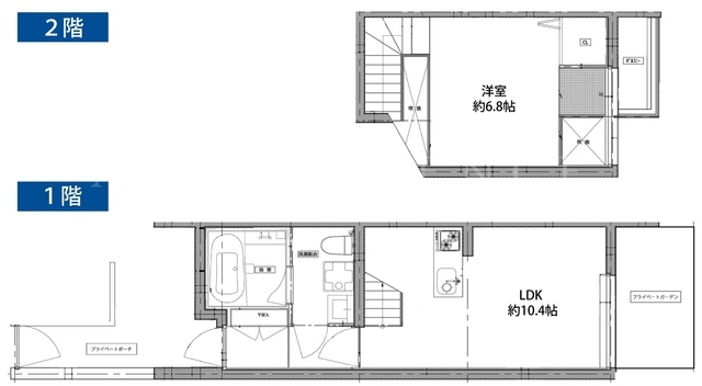
物件概要・設備
| 住所 | 東京都世田谷区奥沢5丁目14-28 | ||
|---|---|---|---|
| 構造 | RC | ||
| 竣工時期 | 2013年03月 | 総戸数 | - |
| 駐車場 | |||
| 取引形態 | 媒介 | ||
外観が表示されていない場合は、
の位置を手動で調整してください
の位置を手動で調整してください
ラフィール自由が丘の
条件に似た賃貸マンション
条件に似た賃貸マンション
-
エルスタンザ下北沢
世田谷代田駅
ワンルーム
15.1万円~15.6万円
-
JMFResidence学芸大学
学芸大学駅
1DK
15.2万円~15.4万円
-
ARKMARK上北沢(アークマーク)
八幡山駅
1LDK
16.9万円~17.6万円
-
ALERO Sangenjaya South (アレーロ三軒茶屋サウス)
三軒茶屋駅
1LDK
15.5万円~16.4万円
-
コンフィアンサ等々力
尾山台駅
1LDK
16.4万円














