メインステージ西麻布Ⅱ

お問合せ物件番号:AL00007720

HP上に公開している物件は一部です
住所 東京都港区西麻布1丁目
交通 日比谷線「六本木」駅徒歩8分
規模 地上12階
総戸数 -
竣工時期 2002年06月

先ずは内見してみませんか?
物件情報に関しては勿論のこと、お探しの条件などございましたらお気軽にお問い合わせください。

お問合わせ
室内画像は一部の住戸のものです。実際の住戸詳細は、是非内見してお確かめください。

検討中リストを見るチェックした物件をまとめて検討中リストへ追加、またはまとめてお問い合わせすることができます。

全てをチェック 全てのチェックを外す

チェックした物件をまとめて>>

マイリストに保存 問合わせる

 部屋一覧  


物件詳細  
階数
間取り
面積
賃料
敷金/礼金
管理費
検討中リスト
お問合せ
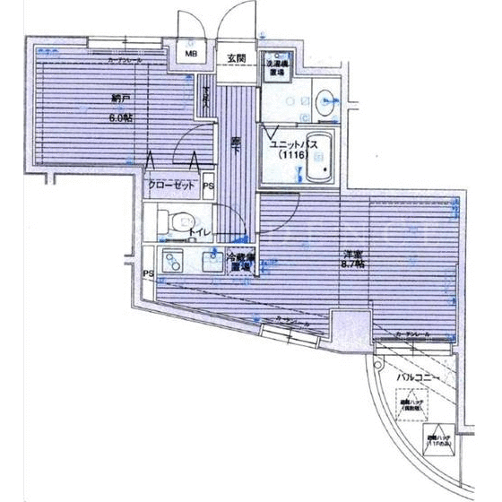
詳細 6階 1DK 39.89m²

-

-/- - マイリストへ 最新情報を確認
空き状況は常に変化します。気になる物件が
ございましたらお早めにお問い合わせください。

…現時点では埋まっておりますが今後空く可能性もございます。

お問合わせ

物件概要・設備

住所 東京都港区西麻布1丁目
構造 SRC
竣工時期 2002年06月 総戸数 -
駐車場